Производство установок очистки сточных вод

со сроком службы более 20 лет, расширенной гарантией, доставкой по РФ, СНГ и Европе

7 лет опыт производства
7 лет опыт производства
В соответствии с европейскими стандартами
В соответствии с европейскими стандартами
Собственная лаборатория для контроля  качества ВИК и УЗК
Собственная лаборатория для контроля качества ВИК и УЗК
Получите расчет и коммерческое предложение
Куда отправить расчет:
Нажимая на кнопку Вы соглашаетесь с политикой конфиденциальности

У вас уже есть
коммерческое предложение,
проект или чертеж?

Пришлите его нам и получите дополнительную скидку,
бесплатную доставку и кэшбек от заказа
offer

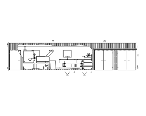
Конструкция установок очистки сточных вод

Тип очистного сооружения зависит от Ваших задач

Заполните опросный лист за 1 минуту и получите точный расчет стоимости

Особенности производства

Шаг 1
20%

Приемка металла

Листы металла проходят предварительную проверку на наличие повреждений
Входной контроль осуществляет ОТК
Шаг 2
40%

Заготовка

На основании технологической карты металл подается со склада на заготовительный участок
Шаг 3
60%

Сборка и сварка

На аттестованных рабочих местах осуществляется сборка и сварка резервуаров
Шаг 4
80%

Испытания

Собранные изделия проходят испытания на герметичность методами:
  • - Цветной дефектоскопии
  • - Гидравлические
  • - Пневмонические
Шаг 5
100%

Контрольная сборка

Нанесение ЛКП и маркировка

Технические характеристики

Технические характеристики
Наименование параметра Значение
Производительность, м³ / сутки 10 - 3000
Наименование рабочей среды Производственные стоки, вода

Разработаем проект по
Вашим параметрам и размерам в
собственном конструкторском бюро!

7 лет производим резервуары
в соответствии с европейскими стандартами

Миссия нашей компании - обеспечить промышленную и строительную отрасли нашей страны российской продукцией европейского качества.

Наша команда состоит из людей, которые болеют за свое дело и по профессионализму ничем не уступают иностранным специалистам.

Своя лаборатория
для контроля качества ВИК и УЗК
10.000 м2
Площадь производства
5.000 м2
Площадь складских помещений
Более 2500
клиентов
ERP система
Автоматизированная система учета
decor

Более 100 человек на предприятии

Более 100 человек на предприятии
Самое главное - иметь окружение, с которым ты сможешь решить любую задачу.
Тысячи грандиозных планов и проектов могут навсегда остаться на бумаге без трудолюбия и профессионализма тех, кто призван их реализовать.
Именно поэтому главная ценность нашей компании – люди, которые в ней работают.
decor

Европейское качество и бережливое производство

Собственное ОТК с 5-ти шаговым
контролем качества

Европейское высокоточное
оборудование

Аттестованное сварочное производство

Лаборатория для контроля
качества ВИК и УЗК

decor

Своё
конструкторское бюро

  • Работа с типовыми проектами
  • 3D-моделирование
  • Оптимизация и доработка иностранных проектов под российские стандарты

Материал в наличии
на складе

  • 5000 м2 – площадь склада
  • Сертификаты на материалы
  • Топ 5 ключевых поставщиков металлопроката

Собственный автопарк
спецтехники

  • Доставка по России, СНГ, Европе
  • Доставка 24/7
  • Выстраиваем оптимальный маршрут
decor
decor

Дополнительные преимущества

3 способа оплаты

3 способа оплаты:

  • • Предоплата
  • • Постоплата
  • • Лизинг
Банковская гарантия

Банковская гарантия

До исполнения всех обязательств
деньги "замораживаются" в банке
Брендирование

Брендирование

Бесплатно нанесем логотип
Вашей компании

Продукция сертифицирована
и соответствует ГОСТ

decor

Примеры очистных сооружений

Горизонтальные резервуары
Вертикальные резервуары
Силосы
Сборные резервуары
КАЗС

Горизонтальный резервуар для топлива, объем 55 м³, срок 9 дней от Стилар

  • Объем: 55 м³
  • Время производства: 9 дней
Описание:
Проект по изготовлению подземного резервуара для хранения топлива.

Горизонтальный резервуар для трансформаторного масла, объем 80 м³, срок 23 дня от Стилар

  • Объем: 80 м³
  • Время производства: 23 дня
Описание:
Проект по изготовлению двух подземных резервуаров для хранения трансформаторного масла
Показать еще

Вертикальный резервуар для битума, объем 40 м³, срок 11 дней от Стилар

  • Объем: 40 м³
  • Время производства: 11 дней
Описание:
Проект по изготовлению вертикального утепленного резервуара для хранения битума.

Вертикальный резервуар для воды, объем 50 м³, срок 1 месяц от Стилар

  • Объем: 50 м³
  • Время производства: 1 месяц
Описание:
Проект по изготовлению семи вертикальных резервуаров для хранения воды.
Показать еще

Силос цельносварной для цемента, объем 110 м³, срок 20 дней от Стилар

  • Объем: 110 м³
  • Время производства: 20 дней
Описание:
Проект по изготовлению двух силосов для хранения цемента

Силос цельносварной для цемента, объем 60 м³, срок 10 дней от Стилар

  • Объем: 60 м³
  • Время производства: 10 дней
Описание:
Проект по изготовлению силоса для хранения цемента.
Показать еще

Вертикальный резервуар для питьевой воды, объем 300 м³, срок 75 дней от Стилар

  • Объем: 300 м³
  • Время производства: 75 дней
Описание:
Проект по изготовлению двух сборно-разборных резервуаров для хранения питьевой воды.

Вертикальный резервуар для питьевой воды, объем 500 м³, срок 73 дня от Стилар

  • Объем: 500 м³
  • Время производства: 73 дня
Описание:
Проект по изготовлению двух сборно-разборных  резервуаров для хранения питьевой воды.
Показать еще

КАЗС трехсекционная, объем 30 м³, срок 3 месяца от Стилар

  • Объем: 30 м³
  • Время производства: 3 месяца
Описание:
Проект по изготовлению трех контейнерных автозаправочных станций для коммерческого использования.

КАЗС двухсекционная, объем 20 м³, срок 50 дней от Стилар

  • Объем: 20 м³
  • Заказчик: Автотранспортное предприятие
  • Время производства: 50 дней
Описание:

Проект по изготовлению двухсекционной КАЗС для автотранспортного предприятия.

Показать еще
decor
decor
decor
decor

Контакты в Краснокамске

ИНН: 7604352745
ОГРН: 1197627000560
ООО «Стилар»
hat

Часто задаваемые вопросы

Что такое очистные сооружения сточных вод?

Очистные сооружения сточных вод предназначены для очистки бытовых и промышленных сточных вод от загрязняющих веществ перед их сбросом в водоемы или повторным использованием.

Какие технологии используются в очистных сооружениях сточных вод?

В очистных сооружениях сточных вод используются различные технологии, включая механическую, биологическую и химическую очистку, а также фильтрацию и дезинфекцию.

Какие преимущества имеют очистные сооружения сточных вод?

Они обеспечивают эффективное удаление загрязняющих веществ из сточных вод, что позволяет снизить негативное воздействие на окружающую среду и соответствовать экологическим нормативам.

Как выбрать подходящее очистное сооружение сточных вод?

Выбор зависит от объема и состава сточных вод, а также требований к качеству очистки. Рекомендуется проконсультироваться со специалистами компании Стилар для выбора оптимального решения.

Как заказать очистные сооружения сточных вод?

Для заказа обратитесь к специалистам компании Стилар по телефону или заполните опросный лист на сайте компании. Вы получите точную цену и условия поставки.

Александр Воронцов
Менеджер завода Стилар
Остались вопросы?
Звоните
+7 499 647 44 30

или закажите обратный звонок

Заказать звонок
youtube-prew

Заполните опросный лист
и получите коммерческое предложение

Получить расчет и коммерческое предложение  

Свяжемся с вами
в течение 30 минут

Напишите нам:

На сайте используются файлы cookie и сервис «Яндекс Метрика» для анализа пользовательской активности.
Понятно